Demi-pension Collège Paul Doumer

NORT SUR ERDRE 44

mcm ARCHITECTES - 8 rue des Tanneurs, BP 165, 44145 Châteaubriant Cedex - 02 40 81 09 15 - agence@mcmarchitectes.fr

L’architecture est douce et rassurante, il s’agit donc d’un bâtiment simple, lumineux et fonctionnel où les enfants se sentiront à l’aise, pour y déjeuner dans le calme et dans l’apaisement d’un environnement protégé.

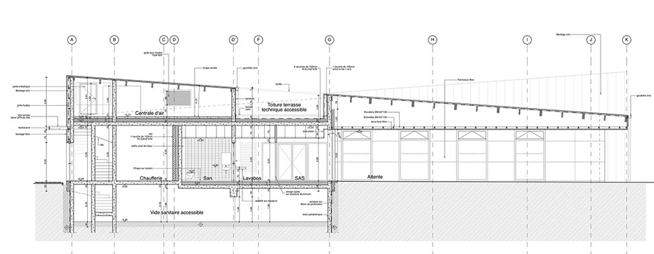
Un jeu de toitures aux pentes contrariées en zinc symbolise les accès et sorties abrités sous des bas de pentes alors que le volume principal de la salle de restaurant s’ouvre largement au sud par une toiture inverse.

Le jeu des pentes inscrit harmonieusement le bâtiment dans son environnement.

Les salles de restaurant sont largement ouvertes au sud avec de grandes baies à l’ensoleillement maîtrisé par des brise-soleil, et des débords de toiture.

À l’opposé par le jeu des pentes inversées, un éclairage nord en haut ou bas de pente viendra faire le contrepoint de lumière et de ventilation.

 

 

Localisation : Rue des écoles, NORT SUR ERDRE

Réalisation : 2015

Mission : Mission de base + EXE + OPC

Coût : 1 842 000 € HT

Surface : 692 m² SHON

Maîtrise d'Ouvrage : Conseil Général de Loire Atlantique